Strona korzysta z plików cookie w celu realizacji usług zgodnie z Polityką dotyczącą cookies. Możesz określić warunki przechowywania lub dostępu do cookie w Twojej przeglądarce.
Zamknij
 Strona główna  Wszystkie oferty  O nas  Kontakt  Kredyty  RODO - informacja  WYSZUKIWARKA   

Numer referencyjny: 7039 - Ludwikowice Kłodzkie

Oferujemy na sprzedaż dużą działkę budowlaną z pozwoleniem na budowę, zatwierdzonym projektem i trwająca budową domu, położoną w Ludwikowicach Kłodzkich tj. w sercu Gór Sowich. OFERTA NA WYŁĄCZNOŚĆ

Cena: 970,000zł

  • 143,50m2 powierzchnia mieszkalna

  • 208,20m2 powierzchnia całkowita

  • 4676m2 powierzchnia działki

Wyślij zapytanie
Wydrukuj oferte
Powrót

Działka o łącznej powierzchni 4676 m2 z dostępem do drogi gminnej. Położona tuż obok tras narciarskich, pieszych oraz rowerowych w Sokolcu i Rzeczce.
Media: energia elektryczna.
Na działce posadowiony dom w trakcie budowy według projektu Studia Atrium dom "Bosfor"o powierzchni użytkowej 143,50 m2. Powierzchnia całkowita domu to 208,20 m2.
W projekcie przewidziana studnia głębinowa, oczyszczalnia ścieków firmy Metalbud, ogrzewanie pompą ciepła.
Cena obejmuje stan z więźbą dachową, membraną i łatami, bez kominów, rynien i okien dachowych.
Cena z kompletnym dachem z rynnami, przewodami kominowymi i oknami to 1 040 000 zł.
Działka z pięknymi widokami w niedalekim sąsiedztwie szlaków na Wielką Sowę, a także stoków narciarskich, tras rowerowych i turystycznych.
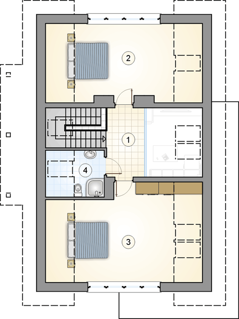
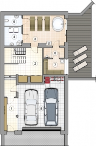
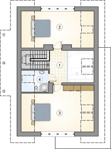
Parametry domu:
Parter 88,70 m2
1 przedsionek 3,40 m2
2 hall z komunikacją 8,15 m2
3 pokój dzienny z kuchnią i jadalnią 50,20 m2
4 spiżarka 1,00 m2
5 w.c. 3,50 m2
6 pokój z garderobą 17,00 m2
7 łazienka 5,45 m2

Poddasze 54,80 m2
1 hall z komunikacją 6,70 m2
2 pokój 19,95 m2
3 pokój 24,35 m2
4 łazienka 3,80 m2

Piwnica 64,70 m2
1 przedsionek 6,40 m2
2 hall z komunikacją 20,70 m2
3 pomieszczenie rekreacyjne 20,30 m2
4 kotłownia 5,40 m2
5 w.c. 3,10 m2
6 łazienka 3,50 m2
7 sauna 5,30 m2

Garaż 38,20 m2.

Miejsce idealne dla osób ceniących sobie kontakt z naturą, ciszę, spokój i piękne widoki.
Polecamy i zapraszamy na bezpłatne prezentacje!

Zapewniamy klientom profesjonalną obsługę z zakresu:
- wyceny nieruchomości;
- kredytu hipotecznego na zakup dowolnej nieruchomości, a także kredytu gotówkowego;
- ubezpieczeń domów, mieszkań ;
- ubezpieczeń komunikacyjnych i NNW;
- wystawienia Świadectw Charakterystyki Energetycznej

Opiekun ogłoszenia

Bartosz Pastwa (tel. 606 187 487)


Formularz kontaktowy w sprawie oferty

Jeżeli chcesz uzyskać więcej informacji dotyczących tej nieruchomości
skontaktuj się z naszym biurem, używając formularza poniżej.


RP Nieruchomości
ul. Wrocławska 25/1 (wejście od ulicy Tylnej obok salonu Orange)
Dzierżoniów
Dolnośląskie
58-200

Tel: 74 817 55 55
Fax: 74 817 55 55

Imię i nazwisko: 

Email: 

Telefon: 

Adres: 

 

 


RP Nieruchomości


Dzierżoniów
ul. Tylna

tel/fax: 74 817 55 55
tel. kom.:
Robert Pastwa
602 138 276
Bartosz Pastwa
606 187 487
pastwanieruchomosci@wp.pl
Godziny otwarcia:
pon - pt 9:00 - 17:00
KREDYTY HIPOTECZNE

KREDYTY MIESZKANIOWE

KREDYTY OBROTOWE

UBEZPIECZENIA NIERUCHOMOŚCI

Wykonanie: iCOMP BIZNES - Twój partner w biznesie